63 Ullswater Way
Home Model :
Community :
3
Bedrooms
2.5
Bathrooms
1,342
Square Feet
Duplex
Style
4-5 Months
Estimated Move-in
Overview
Features & Finishes
Kitchen & Bathrooms
- 3 Pendant Lights Over Island
- 36" High Upper Cabinets in Kitchen
- Disc Lights in Kitchen with Dimmer
- Kitchen with Wall Pantry
- Quartz Kitchen Countertop
- Soft Close Drawers in Kitchen
- Stainless Steel OTR Microwave
- 5' Shower in Ensuite
- Disc Lights in Great Room with Dimmer
Flooring & Interior Finishes
- Laminate Flooring on Main Floor
- Lever Interior Door Handles
- 3" White Baseboards & Casings
- Decora Plugs & Switches Throughout Home
- Flat Painted Ceilings
- Primer Coat Plus Two Finish Coats of Paint
Layout Features
- Main Floor Powder Room
- Separate Garage/Mudroom Entrance
- Side Entrance Added
- Second Floor Laundry
Garage & Basement
- Rear Concrete Parking Pad
- Concrete Piled Foundation
Exterior Features
- Painted Front Door
- Deck Ledger Board
- Triple Pane Windows (Excl. Patio & Lower Level)
- Poured Concrete Driveway and Sidewalk
Energy Efficiency & Mechanical
- HRV System
- LED Interior Lights Where Applicable
- Programmable Thermostat
- Moen Kitchen & Bath Faucets
- R22 Basement Wall Insulation
- R22 Fibreglass Insulation on Exterior Walls
- R50 Insulation in Ceiling
- 1-2-5-10 Year New Home Warranty Program
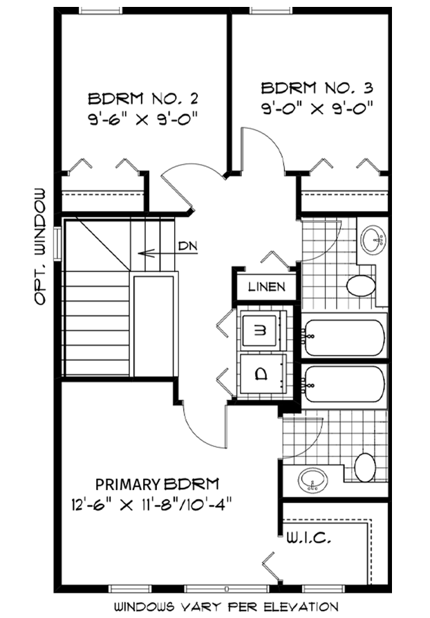
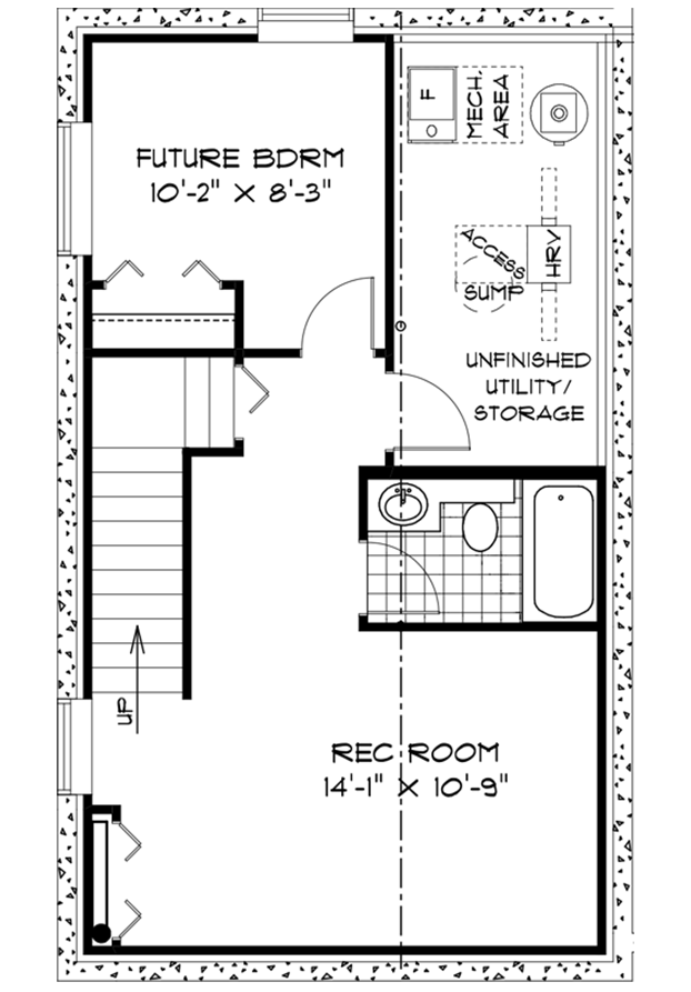
Floor Plans




Warranty
Save & Share This Home
Make This Home Yours – Or Save It for Later
After favouriting a home, users can:
- Access their saved list
- Send it via email or text
- Download or print it as a PDF
Next Steps
Ready to Take the Next Step?
Meet Your Realtor
Helpful Tools
Resources for Your Home Buying Journey
You May Also Like
-
-
384 Desrosiers Drive585700
+ GST
3BedroomsBeds2.5Baths1,765sq ft -
421 Desrosiers Drive485277
+ GST
3BedroomsBeds2Baths1,263sq ft


























