Explore Our Show Homes

Explore our show homes throughout Winnipeg and surrounding areas. Get a feel for the plan you love, or get inspiration for your new custom home. It is never too early to start touring. Have fun exploring these amazing properties!

Unit 84- 100 Grande Pointe Meadows Boulevard
The Grayson
Share
Favorite
6+ Months
Estimated Move-In
$490,188
Price Incl. Lot & GST
1,205
SQFT
3
Beds
2
Baths
Bungalow
Style

Features

  • 21' X 22' Front Attached Garage
  • Energy Package Included
  • Front & Rear Landscaping Included
  • Triple Panel 9' X 8' Glass Patio Doo
  • 14' x 12' Deck at Rear 
  • Stainless Steel OTR at Kitchen
  • Linear Fireplace at Great Room
  • Quartz Counters at Kitchen
  • Ceramic Tile Backsplash at Kitchen
  • Soft Close Drawers/Doors in Kitchen
  • 3 Pendant Lights over Kitchen Island
  • LED Disc Lights at Kitchen & Great Room
  • Dimmer Switches at Disc Lights
  • Laminate Flooring - Main Floor Areas
  • Vinyl Flooring - Bathrooms
  • Carpet - Bedrooms
  • Cultured Marble Counters at Bathrooms
  • Private Ensuite  in Primary Bedroom
  • 5' Shower in Ensuite
  • Larger Basement Windows
  • Air Conditioning Unit Included
  • Lower Level of Home Optional to Develop
  • 1-2-5-10 Year New Home Warranty
*Please note that this home is a condo, and it is part of the brand new development in Grande Pointe Meadows called "The Villas".
*Please speak with a Broadview Homes Realtor today for more information.
*Anticipated target possession is summer 2026.

Welcome to "The Grayson" Show Home, in the community of Grande Pointe Meadows!

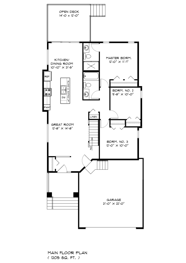
Introducing our newest show home to join “The Villas” Condo Project in Grande Pointe Meadows, where affordability meets style and luxury! Welcome to 84–100 Grande Pointe Meadows Boulevard, The “Grayson” bungalow! This charming home offers 1,205 square feet of well-designed living space, 3 bedrooms, and 2 bathrooms. A linear fireplace serves as the focal point of the great room, adding warmth and a welcoming ambiance. The galley-style kitchen boasts dark grey cabinetry paired with swirled quartz countertops showcasing hues of cream, grey, and brown that extend seamlessly into the backsplash. A wall pantry adds convenient storage. Natural light fills the home through a triple-panel patio door that leads to a spacious 14’ x 12’ rear deck—ideal for outdoor entertaining and relaxation. The primary bedroom includes a walk-in closet and private ensuite, providing a peaceful retreat. Come tour this cozy home today and prepare to be impressed!

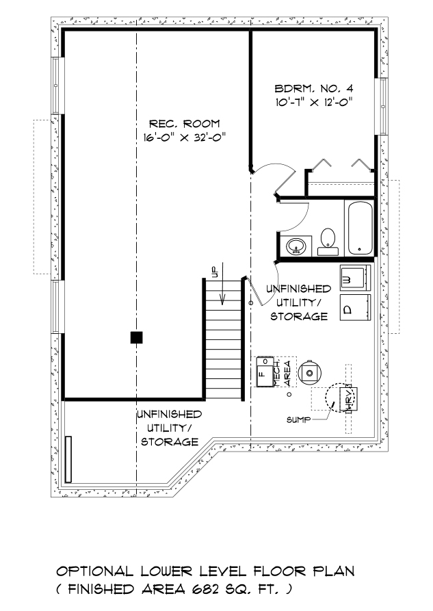
Floorplans

Main Floor
Optional Lower Level
Elevation
84-100GPMBlvdMainFloorRe-Sized
84-100GPMBlvdOptionalLowerLevelRe-Sized
84-100GPM small

3D Tour

nick-liang

Nick Liang

Qualico Realty Services (Manitoba) Ltd.
(204) 470-0743
Grande Pointe Meadows

Show Home Hours

Show Home Hours:
Monday - Thursday: 4:00pm - 8:00pm
Saturday & Sunday: 12:00pm - 5:00pm

Interested in this home?

We can help you get started!

Have any questions? We're here to help!

We blend modern home designs and open concept layouts with family friendly living in mind.

Contact Us