New Home Plans
We have over 30 new home plans for your next build in Winnipeg. We build in remarkable communities with lots to match the exact house that fits your lifestyle.




















Features
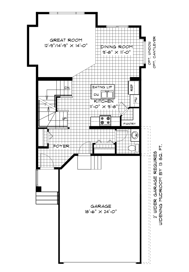
- 18'-6" x 24' Front Attached Double Car Garage
- Main Floor Powder Room
- Corner Pantry and Island with Eating Lip in Kitchen
- Dining Room Towards Rear with Patio Door
- Great Room with Side Wall Cantilever
- LED Interior Lights (where applicable)
- Decora Counter Height Switches and Plugs
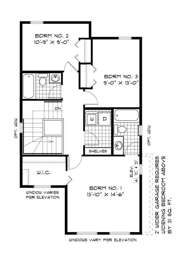
- Convenient Second Floor Laundry Room
- WIC and Ensuite in Primary Bedroom
- 3" Flat MDF Painted Casing and Baseboards
- Poured Concrete Driveway and Sidewalk
- Engineered Concrete Piled Foundation
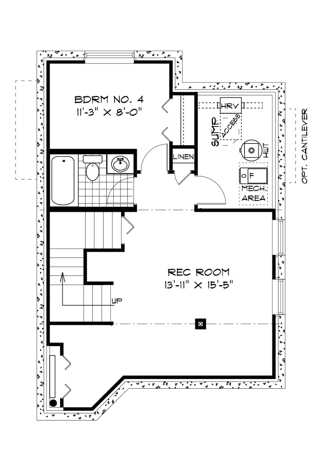
- Lower Level of Home Optional to Develop
- 1-2-5-10 Year New Home Warranty Program

















