Overview
The Pritchard is a 1,451 sq. ft. bungalow featuring 3 bedrooms, 2 bathrooms, a double front attached garage with workshop space, and two elevations available. The rear of the home hosts a great room and dining area, flowing into a kitchen with corner pantry and island with eating lip. The primary bedroom offers a walk-in closet and private ensuite, while the lower level is optional to complete, providing extra living or recreation space.
Features & Finishes
Kitchen & Bathrooms
- Corner Pantry for Storage
- Disc Lights in Kitchen with Dimmer
- Island With Eating Lip
- Laminate Countertops in Kitchen
- One Bank of Drawers in Kitchen
- Moen Genta Pull Down Faucet
- Chrome Bathroom Faucets
- Cultured Marble Counters at Bathrooms
- Mirrors Installed Full Vanity Width
- Standard Tub in Ensuite
- Disc Lights in Great Room with Dimmer
Flooring & Interior Finishes
- Bi-Fold Interior Closet Doors
- Polyester Carpeting - Bedrooms & Stairs
- 3" White Baseboards & Casings
- Decora Plugs & Switches Through Home
- Flat Painted Ceilings
- Primer Coat Plus Two Finish Coats of Paint
- Vinyl Flooring on Main Level Main Living Areas
- White Painted 2 Panel Smooth Interior Doors
- Lever Interior Door Handles
standard Layout Features
- 9' Main Floor Ceiling Height
- 5' Rear Patio Door
- Separate Garage/Mudroom Entrance
- Lower Level Laundry
Garage & Basement
- Double Car Front Attached Garage
- Garage Door Opener With 2 Remotes
- Keyless Entry Pad at Garage
Exterior Features
- Covered Concrete Front Entrance
- Painted Front Door
- Rear Deck Ledger Board
- Poured Concrete Driveway and Sidewalk
- Triple Pane Windows (Excl. Patio & Lower Level)
Energy Efficiency & Mechanical
- 200 Amp Electrical Panel
- HRV System
- LED Interior Lights Where Applicable
- Programmable Thermostat
- Moen Kitchen & Bath Faucets
- R22 Basement Wall Insulation
- R22 Fibreglass Insulation on Exterior Walls
- R50 Insulation in Ceiling
- 1-2-5-10 Year New Home Warranty
- Variable 2 Stage 96% Efficient Gas Furnace
Optional Layout Upgrades
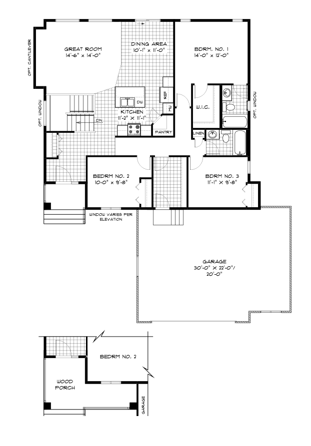
Floor Plans
Main Floor Plan - 1,451 Sq. Ft.
Partial Main Floor Plan - Elevation 'A' - 1,451 Sq. Ft.
Optional Front Porch
Optional Lower Level Floor Plan (Finished Area: 895 Sq. Ft.)
Elevation A
Elevation A
Elevation A With Optional Front Porch
Elevation A With Optional Front Porch
Elevation B
Elevation B
Warranty
3D Tour
Save & Share This Home
Make This Home Yours – Or Save It for Later
After favouriting a home, users can:
- Access their saved list
- Send it via email or text
- Download or print it as a PDF
Next Steps
Ready to Take the Next Step?
Helpful Tools
No related post found for the field: community
No related post found for the field: community
No related post found for the field: community
No related post found for the field: community
You May Also Like
-
TH 05 The Newport3BedroomsBeds2.5Baths1,324sq ft
-
SGA 16 The Jaxon3BedroomsBeds2.5Baths1,518sq ft
-
SGA 15 The Maverick3BedroomsBeds2.5Baths1,596sq ft


























