84-100 Grande Pointe Meadows Blvd
Overview
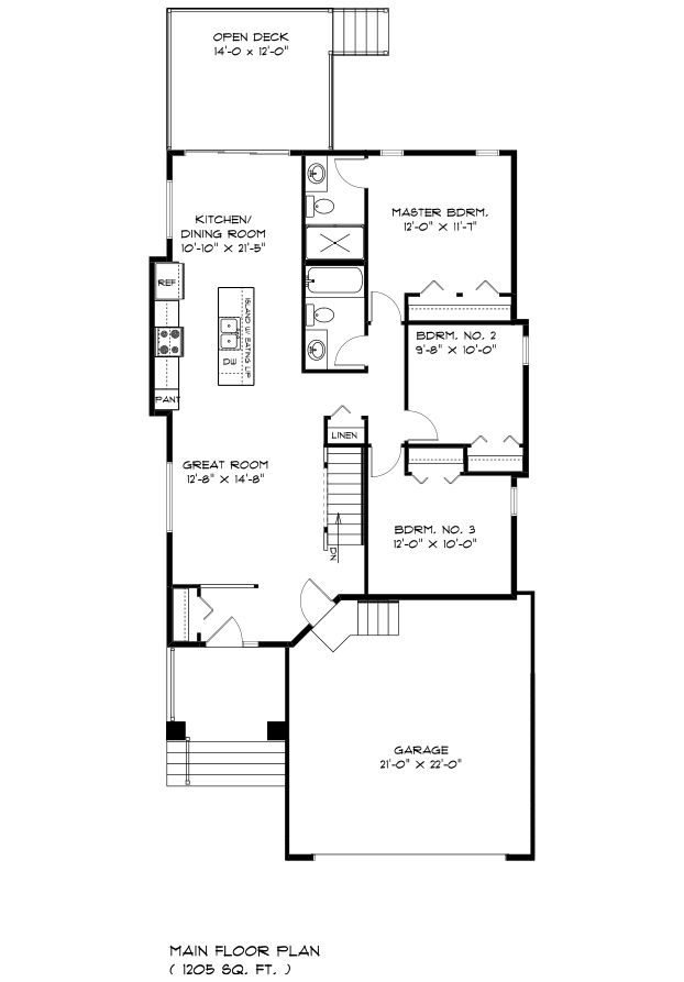
Introducing our newest show home to join “The Villas” Condo Project in Grande Pointe Meadows, where affordability meets style and luxury! Welcome to 84–100 Grande Pointe Meadows Boulevard, The “Grayson” bungalow! This charming home offers 1,205 square feet of well-designed living space, 3 bedrooms, and 2 bathrooms. A linear fireplace serves as the focal point of the great room, adding warmth and a welcoming ambiance. The galley-style kitchen boasts dark grey cabinetry paired with swirled quartz countertops showcasing hues of cream, grey, and brown that extend seamlessly into the backsplash. A wall pantry adds convenient storage. Natural light fills the home through a triple-panel patio door that leads to a spacious 14’ x 12’ rear deck—ideal for outdoor entertaining and relaxation. The primary bedroom includes a walk-in closet and private ensuite, providing a peaceful retreat.
Features & Finishes
Kitchen & Bathrooms
- 3 Pendant Lights Over Island
- 40.5" High Upper Cabinets in Kitchen
- Black Kitchen Faucet
- Disc Lights in Kitchen with Dimmer
- Kitchen Appliances Included
- Quartz Kitchen Backsplash
- Quartz Kitchen Countertop
- Soft Close Drawers in Kitchen
- Stainless Steel OTR Microwave
- Undercabinet Lighting in Kitchen
- Cultured Marble Counters at Bathrooms
- Disc Lights in Great Room with Dimmer
Flooring & Interior Finishes
- Laminate Flooring on Main Floor
- Window Coverings (As installed by builder)
- Black Lighting Package
- Alarm System Installed
Layout Features
- 9' Main Floor Ceiling Height
- 9' Rear Patio Door
- Fireplace in Great Room
- Piano Window at Dining Room
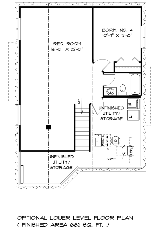
- Lower Level Laundry
Garage & Basement
- 1'-6" Added to Garage Width
- Double Car Front Attached Garage
- Garage Door Opener With 2 Remotes
- Keyless Entry Pad at Garage
- Concrete Piled Foundation
- Painted Basement Floor
- Select Basement Windows Increased in Size
Exterior Features
- Black Exterior Aluminum Railing at Front
- Covered Concrete Front Porch
- House Numbers
- Painted Front Door
- Cedartone Rear Deck Included
- Triple Pane Windows (Excl. Patio & Lower Level)
- Landscaping Included
- Poured Concrete Driveway and Sidewalk
- Video Doorbell Camera
Energy Efficiency & Mechanical
- Air Conditioner
- HRV System
- Programmable Thermostat
- Moen Kitchen & Bath Faucets
- Certified Energy Efficient (By Efficiency Manitoba)
- R22 Basement Wall Insulation
- R22 Fibreglass Insulation on Exterior Walls
- R50 Insulation in Ceiling
- 1-2-5-10 Year New Home Warranty Program
Floor Plans



Warranty
3D Tour
Save & Share This Home
Make This Home Yours – Or Save It for Later
After favouriting a home, users can:
- Access their saved list
- Send it via email or text
- Download or print it as a PDF
Next Steps
Ready to Take the Next Step?
Meet Your Realtor
Helpful Tools
You May Also Like




























