35-100 Grande Pointe Meadows Blvd
Home Model :
Community :
3
Bedrooms
2.5
Bathrooms
1,817
Square Feet
2 Storey (Front Drive)
Style
4-5 Months
Estimated Move-in
Overview
Features & Finishes
Kitchen & Bathrooms
- 3 Pendant Lights Over Island
- 40.5" High Upper Cabinets in Kitchen
- Disc Lights in Kitchen with Dimmer
- Quartz Kitchen Countertop
- Stainless Steel OTR Microwave
- Tile Backsplash in Kitchen
- 5' Shower in Ensuite
- Disc Lights in Great Room with Dimmer
Flooring & Interior Finishes
- Laminate Flooring on Main Floor
- Lever Interior Door Handles
- White Painted 2 Panel Smooth Interior Doors
- Bi-Fold Interior Closet Doors
- Upgraded Vinyl Floor in Baths & Laundry
- Polyester Carpeting - Bedrooms & Stairs
- 3" White Baseboards & Casings
- Decora Plugs & Switches Throughout Home
- Flat Painted Ceilings
- Primer Coat Plus Two Finish Coats of Paint
Layout Features
- 9' Main Floor Ceiling Height
- Fireplace in Great Room
Garage & Basement
- Garage Door Opener With 2 Remotes
- Keyless Entry Pad at Garage
- Concrete Piled Foundation
- Select Basement Windows Increased in Size
Exterior Features
- Painted Front Door
- Deck Ledger Board
- Triple Pane Windows (Excl. Patio & Lower Level)
- Poured Concrete Driveway and Sidewalk
Energy Efficiency & Mechanical
- HRV System
- LED Interior Lights Where Applicable
- Programmable Thermostat
- Moen Kitchen & Bath Faucets
- Energy Modelling Included
- R22 Basement Wall Insulation
- R22 Fibreglass Insulation on Exterior Walls
- R50 Insulation in Ceiling
- 1-2-5-10 Year New Home Warranty Program
Visualize Your Exterior / Interior
Interior Selections

EXterior Selections

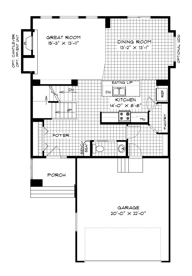
Floor Plans




Warranty
Save & Share This Home
Make This Home Yours – Or Save It for Later
After favouriting a home, users can:
- Access their saved list
- Send it via email or text
- Download or print it as a PDF
Next Steps
Ready to Take the Next Step?
Meet Your Realtor
Helpful Tools
Resources for Your Home Buying Journey
You May Also Like
-
348 Desrosiers Drive590000
+ GST
4BedroomsBeds3Baths1,958sq ft -
-





























